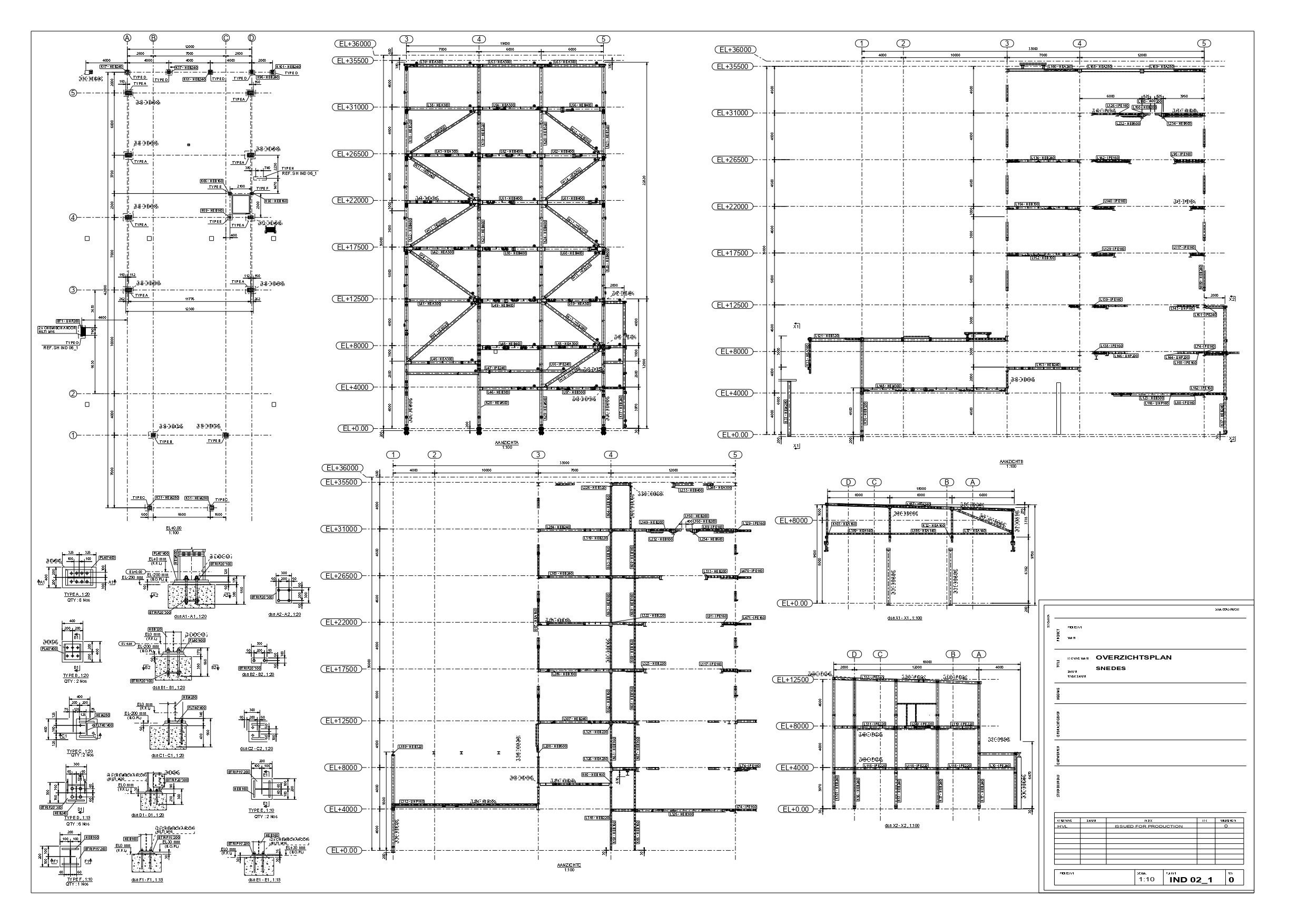
Erection Drawings

BIM Tech Steel is an ideal company for outsourcing erection drawings services. We offer wide range of erection drawings services to worldwide construction industry with our highly skilled engineering team having latest technology and best quality checking of al erection drawings projects. Our erection drawings or erection diagrams show the location andposition of the various members in the finished structure. They are especially useful to personnel performing the erection in the field. For instance, the erection drawings supply the‘approximate weight of heavy pieces, the number of pieces, and other helpful data.

Our client-focused environment helps us earning trust and long term business relationship with them.BIM Tech Steel has participated in numerous domestic and international erection drawings projects. These projects include muiistory office buildings, schools and universities, stadiums, airports, hospitals, and churches. We have been successful in establishing ourselves as a quality supplier of erection drawings.

Our most common components of Erection Drawings:

Anchor Bolt Plans Drawings

Framing Plans Drawings

Building Elevations Drawings

Sectional Elevations Drawings

Stairs and Elevators Drawings

Section Details Drawings

Connection Details Drawings